- ホーム
- 不動産検索
- 新潟市西区寺地
不動産詳細Property Detail
セールスポイント
◇充実のリフォーム、全水回り交換&内装一新!駐車場もゆったり並列4台分へ拡張♪
◇南向きの庭と約20帖の広々LDKが魅力!家族時間をゆったり楽しむ、納戸付き4SLDK♪
◇静かな住宅街の好立地!アピタ徒歩10分・バス停3分の快適アクセス♪
■立仏小学校 約1400m
■黒崎中学校 約4200m
◇◆◇◆◇◆◇◆◇◆◇◆◇◆◇◆◇◆◇◆◇◆◇◆
マスターマインドでお家の全てをおまかせしてみませんか?
これからお家の購入を検討している方はもちろん、住み替えを考えているという方の相談も大歓迎!
予算の組み方や銀行ごとの違い。リノベーションのプランニングから施工まで。全て当店でご相談頂けます。
1人1人に合ったご提案を行っておりますので是非お気軽にお問合せください。
当社HPにて【お客様の声】掲載中です!!
≪お客様の声はコチラから≫
◇◆◇◆◇◆◇◆◇◆◇◆◇◆◇◆◇◆◇◆◇◆◇◆
この不動産のお支払い例
この不動産の支払い例
※上記支払例の借入条件:金利0.875%、
借入総額2,299万円、借入期間40年
この不動産の支払い例
※上記支払例の借入条件:金利0.875%、
借入総額万円、借入期間40年

新築プランセットお支払い例建物+土地
総額:0万円(税込)
土地+新築プランセット
の支払い例
※上記支払例の借入条件:金利0.875%、
借入総額万円、借入期間40年
この不動産の支払い例
※上記支払例の借入条件:金利0.875%、
借入総額万円、借入期間40年
画像
所在地・交通
所在地 |
新潟市西区寺地
|
最寄駅 |
JR越後線 小針 徒歩 約2030m |
最寄バス停 |
新潟交通 寺地西 停歩 約200m |
小学校校区 |
立仏小 |
中学校校区 |
黒埼中 |
不動産概要
種目 |
中古一戸建て |
土地面積 |
251㎡ |
私道面積 |
|
建ぺい率/容積率 |
50% / 100% |
都市計画 |
市街化区域 |
接道状況 |
南東側 幅員約5.0m 公道 / 北西側 幅員約4.0m 公道 |
間口 |
|
奥行 |
|
地目 |
宅地 |
土地権利 |
所有権 |
地勢 |
|
用途地域 |
第一種低層住居専用地域 |
現況 |
空家 |
条件等 |
|
取引態様 |
仲介 |
種目 |
中古一戸建て |
間取り |
4LDK |
間取り内訳 |
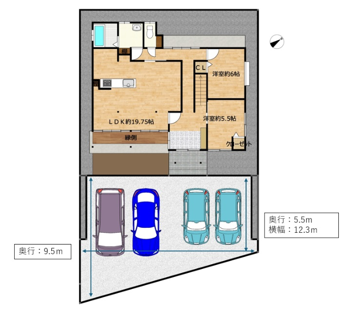
1階:LDK約19.75 洋約6 洋約5.5 2階:洋約6 洋約6 納戸 |
土地面積 |
251㎡ |
私道面積 |
|
建物面積 |
118.8㎡ |
建物構造規模 |
木造2階建 |
築年月(竣工月) |
1984年12月 |
駐車場有無 |
4台可 |
建ぺい率/容積率 |
50% / 100% |
都市計画 |
市街化区域 |
接道状況 |
南東側 幅員約5.0m 公道 / 北西側 幅員約4.0m 公道 |
地目 |
宅地 |
土地権利 |
所有権 |
地勢 |
|
用途地域 |
第一種低層住居専用地域 |
現況 |
空家 |
取引態様 |
仲介 |
種目 |
中古一戸建て |
間取り |
4LDK |
間取り内訳 |
1階:LDK約19.75 洋約6 洋約5.5 2階:洋約6 洋約6 納戸 |
土地面積 |
251㎡ |
私道面積 |
|
建物面積 |
118.8㎡ |
建物構造規模 |
木造2階建 |
築年月(竣工月) |
1984年12月 |
駐車場有無 |
4台可 |
建ぺい率/容積率 |
50% / 100% |
都市計画 |
市街化区域 |
接道状況 |
南東側 幅員約5.0m 公道 / 北西側 幅員約4.0m 公道 |
地目 |
宅地 |
土地権利 |
所有権 |
地勢 |
|
用途地域 |
第一種低層住居専用地域 |
現況 |
空家 |
取引態様 |
仲介 |
種目 |
中古一戸建て |
間取り |
4LDK |
間取り内訳 |
1階:LDK約19.75 洋約6 洋約5.5 2階:洋約6 洋約6 納戸 |
専有面積 |
|
建物構造 |
木造2階建 |
バルコニー面積 |
|
向き |
|
階数 |
|
所在階 |
|
築年月(竣工月) |
1984年12月 |
駐車場有無 |
4台可 |
駐車場料金 |
|
駐車場備考 |
|
総戸数 |
戸 |
管理費 |
|
積立金 |
|
土地権利 |
所有権 |
管理形態/方式 |
|
用途地域 |
第一種低層住居専用地域 |
現況 |
空家 |
取引態様 |
仲介 |
種目 |
中古一戸建て |
土地面積 |
251㎡ |
私道面積 |
|
建物面積 |
118.8㎡ |
建物構造規模 |
木造2階建 |
築年月(竣工月) |
1984年12月 |
駐車場有無 |
4台可 |
駐車場料金 |
|
駐車場備考 |
|
建ぺい率/容積率 |
50% / 100% |
都市計画 |
市街化区域 |
接道状況 |
南東側 幅員約5.0m 公道 / 北西側 幅員約4.0m 公道 |
地目 |
宅地 |
土地権利 |
所有権 |
地勢 |
|
用途地域 |
第一種低層住居専用地域 |
現況 |
空家 |
取引態様 |
仲介 |
種目 |
中古一戸建て |
間取り |
4LDK |
間取り内訳 |
1階:LDK約19.75 洋約6 洋約5.5 2階:洋約6 洋約6 納戸 |
専有面積 |
|
建物構造 |
木造2階建 |
バルコニー面積 |
|
向き |
|
階数 |
|
所在階 |
|
築年月(竣工月) |
1984年12月 |
駐車場有無 |
4台可 |
駐車場料金 |
|
駐車場備考 |
|
総戸数 |
|
管理費 |
|
積立金 |
|
土地権利 |
所有権 |
管理形態/方式 |
|
用途地域 |
第一種低層住居専用地域 |
現況 |
空家 |
取引態様 |
仲介 |
取引条件等
その他
設備 |
温水洗浄便座、トイレ2ヶ所、追焚機能、システムキッチン、収納スペース、床下収納、給湯、洗髪洗面化粧台、都市ガス、公共下水 駐車場4台分、庭 |
特徴 |
日当り良好 |
諸条件・相談 |
|
備考 |
※2025年12月リフォーム完了予定(キッチン・浴室・洗面所・トイレ・壁・床・給湯器・給排水管・建具・外壁) |
情報登録日 |
2025年10月23日 |
情報更新予定日 |
2025年11月6日 |
不動産番号 |
75642 |
この不動産に似た不動産をピックアップしました!