新潟市西区金巻 中古戸建

2,299万円~3,000万円

新潟県新潟市西区金巻

越後線「小針」駅徒歩74分

価格
2,299万円~3,000万円
間取り/建物面積
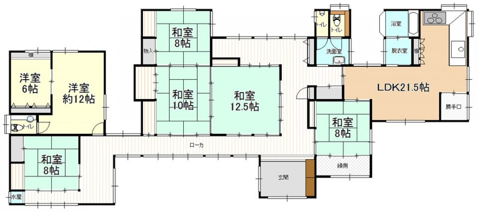
6LDK~7LDK/155.71㎡~234.79㎡
所在地
新潟県新潟市西区金巻
築年
1979年9月(築46年)
駐車
有(5台)
交通

越後線小針」駅 徒歩74分

新潟市西区金巻 中古戸建の基本情報

物件名
新潟市西区金巻 中古戸建
価格
2,299万円~3,000万円
建物面積
155.71㎡~234.79㎡
土地面積
69坪~229.93坪(228.11㎡~760.10㎡)
築年月
1979年9月(築46年)
総戸数
-
所在地
新潟県新潟市西区金巻
交通

越後線小針」駅 徒歩74分

新潟市西区金巻 中古戸建の詳細情報

設備条件
設備(その他)
    -
駐車場/月額
有(5台)/-
土地権利
所有権
国土法届出
不要
用途地域
第一種住居
取引態様
仲介
引渡し
相談

新潟市西区金巻 中古戸建で募集中の物件

  1. 47.10坪 (155.71㎡)

    2,299万円(48.81万円/坪)

  2. 71.02坪 (234.79㎡)

    3,000万円(42.24万円/坪)

周辺施設

  • 新潟市立黒埼中学校の画像

    中学校

    新潟市立黒埼中学校

    410m(6分)

  • ファミリーマート 新潟とっぱら店の画像

    コンビニエンスストア

    ファミリーマート 新潟とっぱら店

    595m(8分)

  • ウエルシア新潟鳥原店の画像

    その他

    ウエルシア新潟鳥原店

    648m(9分)

  • ローソン 新潟大野町店の画像

    コンビニエンスストア

    ローソン 新潟大野町店

    935m(12分)

  • 新潟市立大野小学校の画像

    小学校

    新潟市立大野小学校

    1030m(13分)

近隣の物件

  1. 新潟市西区小針南

    3LDK (110.48㎡)

    2,290万円

  2. 新潟市西区五十嵐1の町

    3LDK (93.57㎡)

    1,549万円

  3. 新潟市西区寺尾朝日通

    5LDK (159.50㎡)

    2,349万円

  4. 新潟市西区木山

    7DK (166.04㎡)

    1,180万円

よく見られている物件

  1. 新潟市西蒲区升潟

    3LDK (100.16㎡)

    1,298万円

  2. 新潟市西区坂井

    4K (63.75㎡)

    690万円

  3. 新潟市中央区新和2丁目

    5DK (146.46㎡)

    3,480万円

  4. 新潟市北区三軒屋町

    3LDK+S(納戸) (122.94㎡)

    2,280万円

新潟市西区金巻 中古戸建

お気軽にお問い合わせください

無料お問い合わせ

株式会社マスターマインド

025-250-7633

10:00~18:00

(休:水曜日)